
Nhận thiết kế kết cấu tất cả các công trình ,đặc biệt các công trình phức tạp, công trình cao tầng, khẩu độ lớn, nhịp lớn...
Phương châm thiết kế: "an toàn, tiết kiệm, thi công thuận lợi,đáp ứng mọi tiêu chi chủ đầu tư".
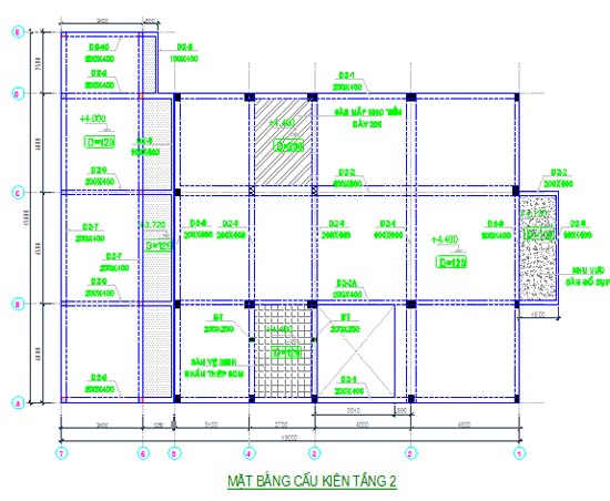
Hệ sàn dâm bê tông cốt thép giao thoa vượt khẩu độ 8,5m tại khu hội trường, Các khu vực khác khẩu độ nhỏ hệ dầm sàn thông thường, sàn 120.








Nhận thiết kế kết cấu tất cả các công trình ,đặc biệt các công trình phức tạp, công trình cao tầng, khẩu độ lớn, nhịp lớn...
Phương châm thiết kế: "an toàn, tiết kiệm, thi công thuận lợi,đáp ứng mọi tiêu chi chủ đầu tư".
Qui định quản lý kiến trúc công trình xây dựng trên địa bàn thành phố đà nẵng, do UBND TP. Đà Nẵng ban hành ngày 12 tháng 10 năm 2012 …
Nhận giám sát công trình, dự án với phương châm: "Uy tín, tận tâm, giá cả hợp lý" …